Watertown Mall
1300 9th Avenue SE
Watertown, SD 57201
Watertown Mall is a 303,008 square foot enclosed shopping mall, conveniently located in a dynamic retail location in Watertown, South Dakota. With many excellent retailers including Dunham’s, Harbor Freight Tools, Bath and Body Works, Senor Max’s Lounge, and more, Watertown Mall is the choice location for retailers in the trade area.
Leasing Contacts
Anchor Stores
Dunham’s Sports
Planet Fitness
Harbor Freight Tools
Property
Enclosed Mall
Built
1977
Total Square Feet
303,008
Space Available
45,110 sq ft
4,136 sq ft
3,033 sq ft
518 sq ft
621 sq ft
633 sq ft
2,678 sq ft
2,874 sq ft
2,039 sq ft
1,375 sq ft
6,269 sq ft
34,327 sq ft
1,500 sq ft
1,688 sq ft
Tenants
Abby’s Treasures
Angels Attic
B&K Sports Collectibles
Bags and Swag
Bath & Body Works
Blessings Big & Small
Colorful Nails
Dunham’s Sports
Famous Footwear
Good Buy Gal’s
Harbor Freight Tools
Hy Vee Supermarket
Lea’s Hallmark
Mattress by Appointment
Planet Fitness
Señor Max’s Lounge
Sheehan Trailers
SK Alterations
Watertown Mall
Hy Vee Supermarket
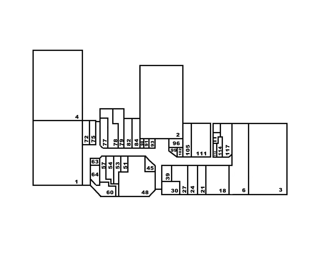
U1
62478 sq ft
Dunhams Sports
1
39985 sq ft
Available #4
4
45110 sq ft
South Dakota Trailer Co (Sheehan Trailers)
72
1959 sq ft
Mattress by Appointment
75
1918 sq ft
Good Buy Gal's
77
3015 sq ft
Good Buy Gal's
78
4900 sq ft
Available #79
79
4136 sq ft
Available #82
82
3033 sq ft
Bath & Body Works
84
3000 sq ft
Available #90
90
518 sq ft
Available #91
91
621 sq ft
Abby's Treasures
93
759 sq ft
Angels Attic
2
40346 sq ft
Available #86
96
1733 sq ft
Available #99
99
633 sq ft
Colorful Nails
102
1050 sq ft
Ultimate Kicks
105
3383 sq ft
Available #111
111
6269 sq ft
SK Alterations
112
694 sq ft
Angels Attic 2
114
1318 sq ft
Future Tenant
117
5910 sq ft
Harbor Freight Tools
120
2090 sq ft
Harbor Freight Tools
125
4071 sq ft
Available #3
3
34327 sq ft
Harbor Freight Tools
6
5445 sq ft
Future Tenant
18
9450 sq ft
Available #21
21
2500 sq ft
Lea's Hallmark
24
3812 sq ft
Famous Footwear
27
4188 sq ft
Senor Max's Lounge
30
3000 sq ft
B & K Sports Collectibles
39
1500 sq ft
Available #45
45
1688 sq ft
Planet Fitness
48
14903 sq ft
Bags and Swag
51
1375 sq ft
Available #53
53
2039 sq ft
Available #54
54
2874 sq ft
Blessings Big and Small
57
2678 sq ft
Available #63
63
682 sq ft
Available #64
64
1865 sq ft
Available #60
60
3493 sq ft

